Este sitio web utiliza cookies propias y de terceros que permiten mejorar la usabilidad de navegación, analizar el uso de la web y mostrar publicidad relacionada con tus preferencias sobre la base de un perfil elaborado a partir de tus hábitos de navegación (por ejemplo, páginas visitadas). Política de cookies.

CONFIGURAR RECHAZAR ACEPTAR
ESETR3S ARQUITECTURA
  • español Español
  • catalán Catalán
  • DESPACHO
  • SERVICIOS
    • Rehabilitación de edificios
    • Redación de informes
    • Certificados
  • TRABAJOS
  • CONTACTO
eSetr3s Arquitectura
  • DESPACHO
  • SERVICIOS
    • Rehabilitación de edificios
    • Redación de informes
    • Certificados
  • TRABAJOS
  • CONTACTO
  • español
  • catalán

Rehabilitación vivienda – Ronda Sant Antoni

Plano de rehabilitación terminada

Plano de rehabilitación terminada

Interior rehabilitación vivienda

Interior rehabilitación vivienda

Trabajo en la rehabilitación de vivienda

Trabajo en la rehabilitación de vivienda

Rehabilitación vivienda Ronda Sant Antoni

Rehabilitación vivienda Ronda Sant Antoni

Detalle techo rehabilitación vivienda

Detalle techo rehabilitación vivienda

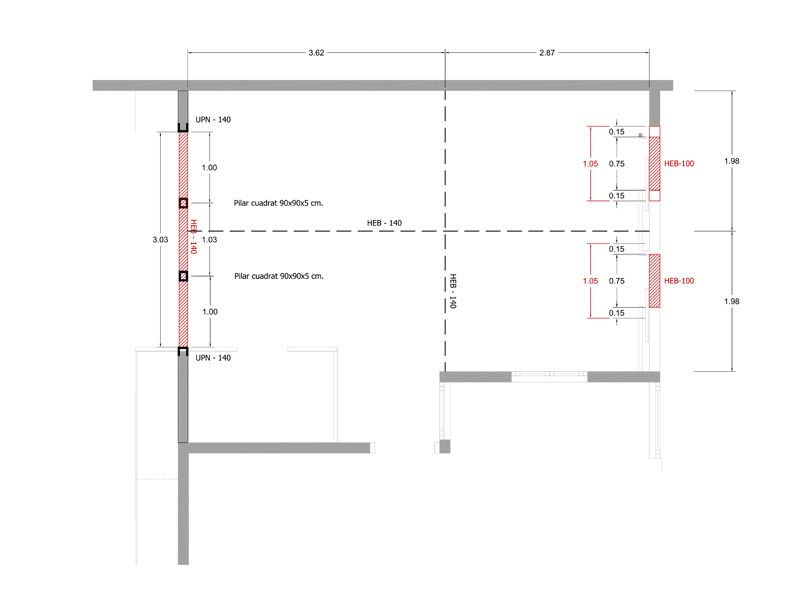
Vigas rehabilitación vivienda Ronda de Sant Antoni

Vigas rehabilitación vivienda Ronda de Sant Antoni

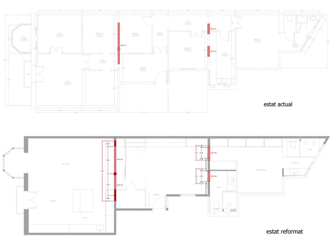
Plano antes y después de la rehabilitación

Plano antes y después de la rehabilitación

Detalle rehabilitación vivienda

Detalle rehabilitación vivienda

Detalle puerta durnate rehabilitación

Detalle puerta durnate rehabilitación

Vivienda en Sant Antoni durante su rehabilitación

Vivienda en Sant Antoni durante su rehabilitación

Inicio de obras de rehabilitación en Sant Antoni

Inicio de obras de rehabilitación en Sant Antoni

Whatsapp
C/ Martínez de la Rosa, 59 Local Ext. Derecha - Barcelona
93 238 61 23
  • Inicio
  • Aviso legal
  • Cookies
  • Privacidad
Volver arriba
Financiado por el programa KIT Digital Financiado por el programa KIT Digital Financiado por el programa KIT Digital Plan de recuperación, Transformaciónh y Resiliencia Financiado por la Unión Europea

Política de Cookies y Configuración

Mediante este panel de configuración de Cookies, podrás conocer con qué finalidad se utilizan las cookies. Dispones también de la posibilidad de configurarlas para aceptar o rechazar de forma total o parcial su utilización y además, obtendrás información adicional para conocer información completa sobre su significado, configuración, finalidades y derechos... [leer más]

Este Sitio Web utiliza cookies propias y de terceras entidades, con la finalidad de brindarte una experiencia de navegación satisfactoria, realizar métricas y estadísticas, así como acciones de marketing. Si no estás de acuerdo con alguna de las finalidades, puedes personalizar las opciones desde esta política. [leer menos]

Cómo usuario, permito la utilización e instalación de las cookies con las siguientes finalidades:

Cookies Técnicas

Siempre habilitado

Se trata de Cookies propias con una finalidad exclusivamente técnica, que no recaban, ni ceden ningún dato de carácter personal del usuario sin su consentimiento y no se utilizan para recoger información, ni registra las direcciones IP de acceso, ni comportamiento de navegación. Se trata de unas cookies necesarias e imprescindibles, que tienen la finalidad de poder ofrecer el servicio al usuario de este sitio web, con el objetivo de facilitar su utilización con una finalidad técnica, para permitir la navegación a través del sitio web y la utilización de las diferentes opciones y servicios que en ella existen, como por ejemplo la propia gestión de las cookies.

Cookies de preferencias

Se trata de cookies que permiten personalizar las funciones o contenidos del sitio web en función de los datos obtenidos del navegador, como por ejemplo, el idioma. La no utilización de estas cookies, impedirá almacenar datos de preferencias para futuras visitas, pudiendo hacer que la experiencia del sitio web sea menos funcional o satisfactoria, pero no afectará a su funcionamiento.

Cookies de estadísticas

Con la finalidad de ofrecer el mejor servicio al usuario y al objeto de facilitar la utilización del sitio web, se analizan el número de páginas visitadas, el número de visitas, así como la actividad de los visitantes y su frecuencia de utilización. A estos efectos se elaborará información estadística anónima, elaborada con el objetivo de analizar la actividad de los usuarios dentro del sitio web, medir el tráfico y el rendimiento de la web, obtener mediciones y ofrecer unas mejores prestaciones futuras.

Cookies de marketing

Permiten ofrecer al usuario contenidos y publicidad apropiada en los sitios web y plataformas sociales en función de sus gustos y preferencias de navegación, pudiendo crear un perfil sobre usted y sus intereses, con el objetivo de mostrarle contenido personalizado.

Además, este sitio web puede disponer de enlaces a sitios web de terceros, cuyas políticas de privacidad, políticas de cookies y textos legales, son ajenos al titular del presente sitio web. Al acceder a dichos sitios web mediante los mencionados enlaces, el usuario es libre de decidir si acepta o rechaza los mencionados apartados.