Este sitio web utiliza cookies propias y de terceros que permiten mejorar la usabilidad de navegación, analizar el uso de la web y mostrar publicidad relacionada con tus preferencias sobre la base de un perfil elaborado a partir de tus hábitos de navegación (por ejemplo, páginas visitadas). Política de cookies.
Si buscas calidad para tus proyectos de rehabilitaciones y construcción, póngase en manos de nuestro equipo de arquitectos en Barcelona. Nos encontramos a pie de calle, en un local situado en la calle Martínez de la Rosa, número 59, en pleno barrio de Gracia.
Ven a vernos a nuestras oficinas o solicita información a través de nuestro formulario de contacto o por teléfono. Aquí te mostramos algunos de nuestros proyectos de los últimos años.
Trabajos realizados por los arquitectos de nuestro despacho
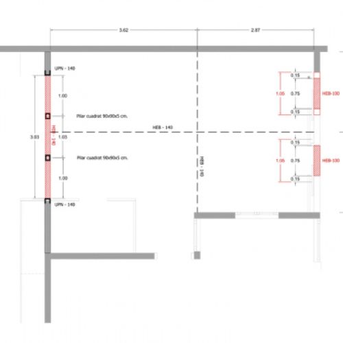
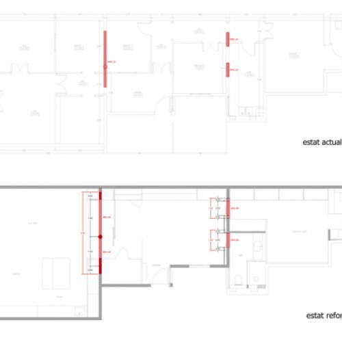
Rehabilitación vivienda – Ronda Sant Antoni
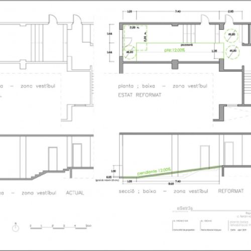
Rehabilitación vestíbulo – C/ Ferran Valls i Taberner
Rehabilitación fachada - C/ Muntaner, Barcelona
Reparación de fachada catalogada ensanche da Barcelona (año 1896).
Rehabilitación fachada - C/ Pare Lainez, Barcelona (B)
Reparación vestíbulo - C/ Consell de Cent, Barcelona
Rehabilitación de vestíbulo y escala de entrada a la finca. Aprovechando la sustitución y mejora del sistema de desagües enterrados, se eliminan los escalones existentes de subida y bajada para llegar al ascensor y dar accesibilidad a la finca.
Además, se aprovecha para rehabilitar el vestíbulo de entrada con acabados, color y texturas similares al iniciales de la época.
Reparación fachada - C/ Entença, Barcelona
Rehabilitación fachada - C/ Roger Flor, Barcelona
Rehabilitación integral fachada edificio plurifamilirar cantoner en ensanche derecho de Barcelona.
Rehabilitación fachada - C/ Paral.lel, Barcelona
Rehabilitación fachada - C/ Consell de Cent, Barcelona
Rehabilitación fachada - C/ Astúries, Barcelona
Reparación fachada - C/ Brusi, Barcelona
Rehabilitación fachada - C/ Pare Lainez, Barcelona (A)
Mediante este panel de configuración de Cookies, podrás conocer con qué finalidad se utilizan las cookies. Dispones también de la posibilidad de configurarlas para aceptar o rechazar de forma total o parcial su utilización y además, obtendrás información adicional para conocer información completa sobre su significado, configuración, finalidades y derechos... [leer más]
Este Sitio Web utiliza cookies propias y de terceras entidades, con la finalidad de brindarte una experiencia de navegación satisfactoria, realizar métricas y estadísticas, así como acciones de marketing. Si no estás de acuerdo con alguna de las finalidades, puedes personalizar las opciones desde esta política. [leer menos]
Cómo usuario, permito la utilización e instalación de las cookies con las siguientes finalidades:
Cookies Técnicas
Siempre habilitado
Se trata de Cookies propias con una finalidad exclusivamente técnica, que no recaban, ni ceden ningún dato de carácter personal del usuario sin su consentimiento y no se utilizan para recoger información, ni registra las direcciones IP de acceso, ni comportamiento de navegación. Se trata de unas cookies necesarias e imprescindibles, que tienen la finalidad de poder ofrecer el servicio al usuario de este sitio web, con el objetivo de facilitar su utilización con una finalidad técnica, para permitir la navegación a través del sitio web y la utilización de las diferentes opciones y servicios que en ella existen, como por ejemplo la propia gestión de las cookies.
Cookies de preferencias
Se trata de cookies que permiten personalizar las funciones o contenidos del sitio web en función de los datos obtenidos del navegador, como por ejemplo, el idioma. La no utilización de estas cookies, impedirá almacenar datos de preferencias para futuras visitas, pudiendo hacer que la experiencia del sitio web sea menos funcional o satisfactoria, pero no afectará a su funcionamiento.
Cookies de estadísticas
Con la finalidad de ofrecer el mejor servicio al usuario y al objeto de facilitar la utilización del sitio web, se analizan el número de páginas visitadas, el número de visitas, así como la actividad de los visitantes y su frecuencia de utilización. A estos efectos se elaborará información estadística anónima, elaborada con el objetivo de analizar la actividad de los usuarios dentro del sitio web, medir el tráfico y el rendimiento de la web, obtener mediciones y ofrecer unas mejores prestaciones futuras.
Cookies de marketing
Permiten ofrecer al usuario contenidos y publicidad apropiada en los sitios web y plataformas sociales en función de sus gustos y preferencias de navegación, pudiendo crear un perfil sobre usted y sus intereses, con el objetivo de mostrarle contenido personalizado.
Además, este sitio web puede disponer de enlaces a sitios web de terceros, cuyas políticas de privacidad, políticas de cookies y textos legales, son ajenos al titular del presente sitio web. Al acceder a dichos sitios web mediante los mencionados enlaces, el usuario es libre de decidir si acepta o rechaza los mencionados apartados.