Aquest lloc web utilitza cookies pròpies i de tercers que permeten millorar la usabilitat de navegació, analitzar l'ús del web i mostrar publicitat relacionada amb les vostres preferències sobre la base d'un perfil elaborat a partir dels vostres hàbits de navegació (per exemple, pàgines visitades). Política de cookies.'

CONFIGURACIÓ REBUTJAR ACCEPTAR
ESETR3S ARQUITECTURA
  • espanyol Espanyol
  • català Català
  • DESPATX
  • SERVEIS
    • Rehabilitació d’edificis
    • Redacció d'informes
    • Certificats
  • TREBALLS
  • CONTACTE
eSetr3s Arquitectura
  • DESPATX
  • SERVEIS
    • Rehabilitació d’edificis
    • Redacció d'informes
    • Certificats
  • TREBALLS
  • CONTACTE
  • espanyol
  • català

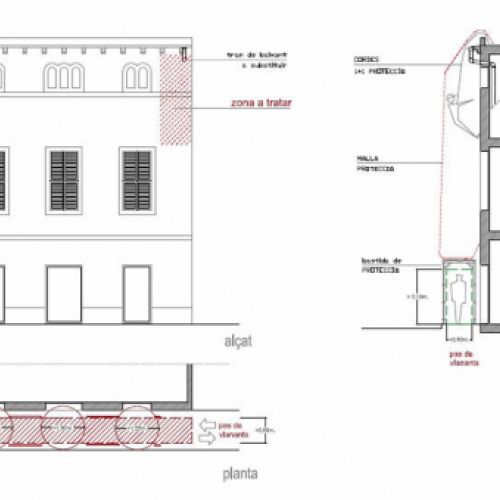
Reparació façana - C/ Brusi, Barcelona

  • Reparació façana - C/ Brusi, Barcelona
Façana a reparar
Façana durant reparació
Plànols façana
Previous Next
Whatsapp
C/ Martínez de la Rosa, 59 Local Ext. Der. - Barcelona
93 238 61 23
  • Inici
  • Avís Legal
  • Política de cookies
  • Privacitat
Tornar a dalt
Financiado por el programa KIT Digital Financiado por el programa KIT Digital Financiado por el programa KIT Digital Plan de recuperación, Transformaciónh y Resiliencia Financiado por la Unión Europea

Política de Cookies i Configuració

Mitjançant aquest panell de configuració de Cookies, l’usuari podrà conèixer amb quina finalitat s’utilitza les cookies, disposa també de la possibilitat de configurar-les per acceptar o rebutjar de forma total o parcial la seva utilització i a més obtindrà informació addicional per a conèixer informació completa sobre el seu significat, configuració, finalitats i drets... [Llegir més]

Aquest lloc web utilitza cookies pròpies i de terceres entitats, amb la finalitat de brindar una experiència de navegació satisfactòria per a l’usuari, realitzar mètriques i estadístiques, així com accions de màrqueting. Si l’usuari no està d’acord amb alguna de les finalitats, pot personalitzar les opcions des d’aquesta política... [Llegir menys]

L’usuari, permet la utilització i instal·lació de les cookies amb les següents finalitats:

Cookies Tècniques

Sempre habilitat

Es tracta de cookies pròpies amb una finalitat exclusivament tècnica, que no recapten, ni cedeixen cap dada de caràcter personal de l’usuari sense el seu consentiment i no s’utilitzen per recollir informació, ni registra les adreces IP d’accés, ni comportaments de navegació. Es tracta d’unes cookies necessàries i imprescindibles, i tenen la finalitat de poder oferir el servei a l’usuari d’aquest lloc web, amb l’objectiu de facilitar la seva utilització de les diferents opcions i serveis que en ella existeixen, com per exemple, la mateixa gestió de les cookies.

Cookies de preferències

Es tracta de cookies que permeten personalitzar les funcions o continguts del lloc web en funció de les dades obtingudes del navegador, com per exemple l’idioma. La no utilització d’aquestes cookies, impedirà emmagatzemar dades de preferències per a futures visites, podent fer que l’experiència del lloc web sigui menys funcional o satisfactòria, però no afectarà el seu funcionament.

Cookies d’estadístiques

Amb la finalitat d’oferir el millor servei a l’usuari i amb l’objectiu de facilitar la utilització del lloc web, s’analitzen el nombre de pàgines visitades, així com l’activitat dels visitants i la seva freqüència d’utilització. A aquests efectes s’elaborarà informació estadística anònima, elaborada amb l’objectiu d’analitzar l’activitat dels usuaris dins del loc web, mesurar el tràfic i el rendiment de la web, obtenir mesuraments i oferir unes millors prestacions futures.

Cookies de màrqueting

Permeten oferir a l’usuari continguts i publicitat apropiada en el lloc web i plataformes socials en funció dels seus gustos i preferències de navegació, podent crear un perfil sobre vostè i els seus interessos, amb l’objectiu de mostrar-li el contingut personalitzat.

A més, aquest lloc web pot disposar d’enllaços a llocs web de tercers, les polítiques de privacitat, polítiques de cookies i textos legals, són aliens al titular del present lloc web. En accedir a aquests llocs web mitjançant els enllaços esmentats, l’usuari és lliure de decidir si accepta o rebutja els apartats esmentats.